
FLAT 4
FLAT 4
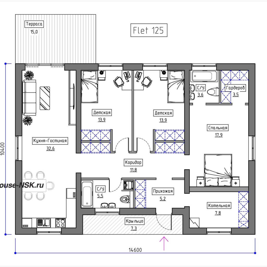
Одноэтажный современный дом из кирпича.
Общая площадь 123 кв.м
Удобная планировка. Просторная кухня — гостиная с выходом на террасу, 3 спальные комнаты и 2 раздельных с/у. Подойдет семье из 4х человек.

Комплектации и цены

Мы за качество и индивидуальный подход!!!





